Разделы сайта

Приборы и способы измерения угловых перемещений

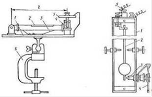
Для измерения углов поворота применяют приборы, называемые клинометрами. В настоящее время наибольшее распространение имеют клинометры с уровнем Стопани и маятниковые клинометры конструкции Н. Н. Аистова.

Условные обозначения: База проката квадроциклов: atvpark прокат и аренда квадроциклов мотопрокат50.рф.

- станина;

- уровень;

- пластинчатая пружина;

- микрометренный винт;

- диск;

- струбцина

- корпус;

- маятник;

- микрометренный винт;

-диск.

Рисунок 1 - Клинометр

Этими приборами можно измерять углы поворота только в вертикальной плоскости при статических испытаниях. Клинометр с уровнем представляет собой станину, к которой слева шарнирно прикреплен уровень 2, поддерживаемый пластинчатой пружиной 3. Правый конец уровня микрометренным винтом 4 можно перемещать в вертикальной плоскости. К микрометренному винту жестко прикреплен диск с делениями 5. Прибор закрепляют на испытуемой конструкции струбциной 6, соединенной шаровым шарниром со станиной. Для измерения угла поворота конструкции к ней в определенной точке струбциной прикрепляют клинометр. Продольная ось уровня должна находиться в плоскости измеряемого угла поворота. Уровень посредством шарового шарнира устанавливают в горизонтальное положение. Для точной установки уровня пользуются микрометренным винтом [5].

Это положение фиксируют снятием отсчета по шкале диска 5, показывающего долю оборота винта. При повороте конструкции вследствие ее загружения испытательной нагрузкой уровень повернется на тот же угол. Для определения угла поворота уровень микрометренным винтом возвращают в горизонтальное положение и снова снимают отсчет. Разность отсчетов, умноженная на шаг винта, дает величину перемещения конца уровня.

Самое читаемое:

Анализ прохождения детерминированного сигнала через линейную цепь с постоянными параметрами
Нахождение корреляционной функции для входного сигнала, сдвинутого на на интервале При обработке сигналов часто приходится сравнивать сигнал со смещёнными во времени копиями этого сигнала, а также другими сигналами. О степени связи сигнала со смещёнными копиями можно судить по корреляционным функциям. Для вещественного сигнал ...

www.techstages.ru : Все права защищены! 2025